Vivienda de 130 metros cuadrados

Precio estimado desde

205.350 €+I.V.A

Vivienda de 130 m2

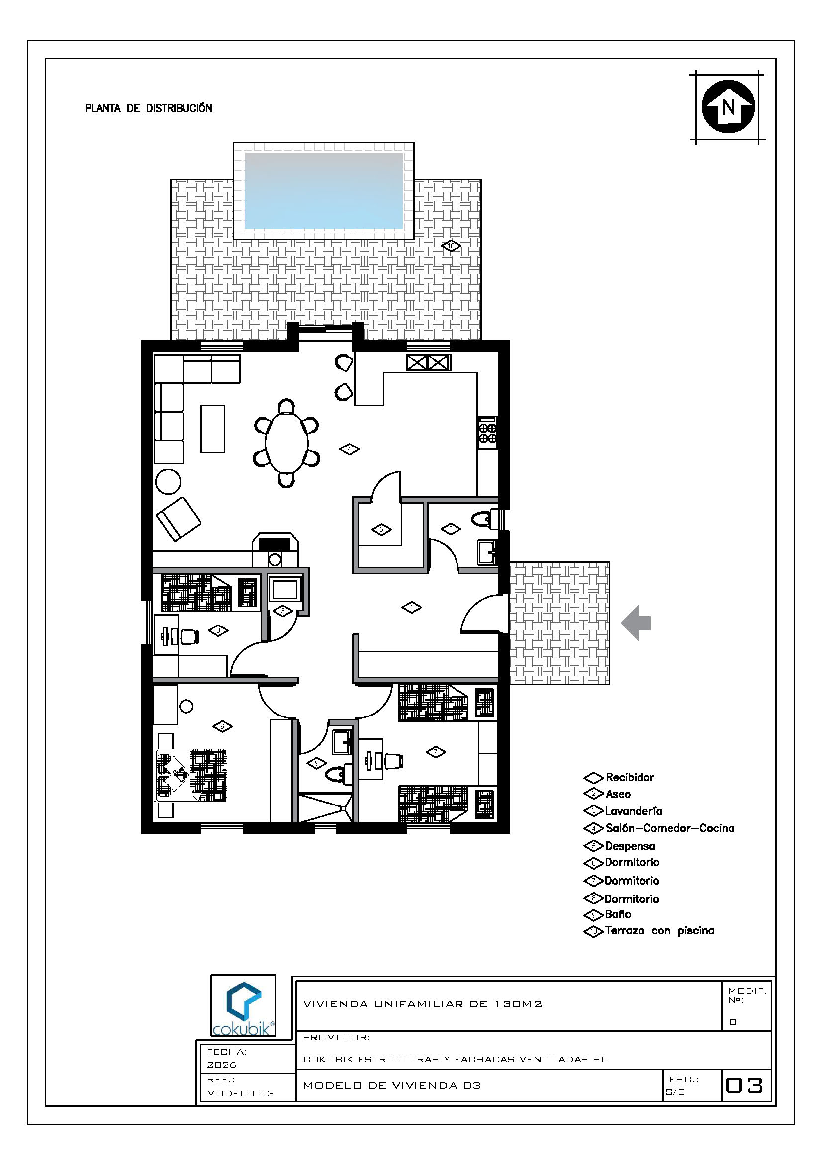
Vivienda Unifamiliar de 130 m2, compuesta por tres dormitorios, un baño y un aseo.

Salón-comedor-cocina, lavandería y área exterior con piscina.

Sistema constructivo PASSIVPANEL, compuesto por núcleo de XPS y recubrimiento de hormigón armado, aportando un excelente aislamiento térmico y resistencia.

Planos de distribución

Calidad de vida

Diseñamos para maximizar el confort de cada estancia en función de la superficie de la vivienda. Consulta sobre estas opciones con nuestros técnicos.

Calidad de vida

Diseñamos para maximizar el confort de cada estancia en función de la superficie de la vivienda. Consulta sobre estas opciones con nuestros técnicos.

Vivienda 130mts

«Luz Natural y Amplitud: Claves para el Bienestar y la Eficiencia en el Hogar Moderno»

La luz natural mejora el bienestar y la salud. Además, disminuye el consumo al reducir la necesidad de iluminación artificial y mejorar la ventilación.

Crea una conexión con el exterior, haciendo los espacios más acogedores realzando su estética, permitiendo mayor flexibilidad en el diseño interior.

Construcciones Auxiliares

Porches, garaje para uno o varios vehículos, piscina, casas de invitados.

Incluye en tu proyecto espacios para adaptar tu vivienda a tus necesidades. Nuestros técnicos te propondrán soluciones adecuadas y valoraciones precisas.

Opciones de personalización

El precio de las viviendas Cokubik incluye la elección de materiales para exteriores e interiores

Durante el proceso de configuración, nuestros técnicos te informarán sobre todas las opciones disponibles para esta casa. Selecciona materiales, colores, acabados, cubierta plana o con una o dos aguas…

Memoria de calidades

Confort y altos estándares

Componentes estructurales

Estructura

Estructura metálica formada por un entramado de perfiles de sección abierta en el forjado, y de perfiles tubulares en fachada, cubierta y pilares. Soldados y tratados con imprimación anticorrosión.

Forjado

Losa de hormigón armado con suelo radiante y refrescante integrado tanto en plantas inferiores como superiores.

Fachadas y cubiertas

Por capas desde fuera hacia dentro

a. Revestimiento decorativo exterior de mármol, panel resinado de pizarra, cuarcita, madera o porcelánico.

b. Panel de cerramiento de alto rendimiento, formado por chapas galvanizadas, lacadas en caliente y con interior de poliuretano expandido de espesor de 80 mm.

c. En una misma capa y en combinación:
Conjunto de sub-estructuras metálicas auxiliares de refuerzo y montante para panel de cerramiento.
Sistema de aislamiento acústico y térmico formado por la combinación de lana de roca y polietileno extruido
Instalaciones de fontanería, electricidad y Pladur.

d. Trasdosado de placa de cartón-yeso, tipo Pladur, pasteado y pintado nivel de acabado Q2.

e. Imprimación hidrófuga y pintura hidrófuga como acabado final.

Acabados exteriores

Revestimiento fachada

Distintos materiales pétreos, alicatados porcelánicos de gran formato o maderas técnicas a elegir, fijadas mediante un soporte mecánico y un componente químico en función del material seleccionado.

Carpintería puertas y ventanas

Acero galvanizado recubierto de PVC de 7 cm. de grosor, resistente a decoloraciones por rayos UVA.

Cristales

Climalit, con sistema antifragmentación, rotura de puente térmico y Planitherm.

Acabados interiores

Suelo

Aplacados porcelánicos en distintos formatos a elegir.

Pintura

Una capa de imprimación y pintura antihumedad en todas las estancias.

Cocina

Muebles de compuestos de maderas y encimera de piedra.

Muebles de baño

Conglomerado de maderas hidrófugas, acabado laminado en diferentes colores a elegir.

Grifería y sanitarios

Incluye inodoro con tapa amortiguada, plato de ducha de resina antideslizante con mampara y grifería termostática, lavabo con grifería y espejo.

Iluminación

Leds de bajo consumo montados en sistema Downlight.

Persianas

Eléctricas en dormitorios.

Climatización

Suelo radiante y refrescante por aerotermia.

Compra hoy el modelo de casa que disfrutarás mañana.

Nuestro equipo te acompaña desde la idea inicial hasta la entrega final, con asesoría técnica y soluciones adaptadas a tu proyecto.